たっぷり収納
物件番号:00-20251027-921-1284
このお部屋は収納が充実しているので
洋服や荷物の多い方、ファミリーには嬉しい物件
リビングには昼間は太陽が差し込み、
ぽかぽか過ごせる
アルコーブがあるからセキュリティ面も安心
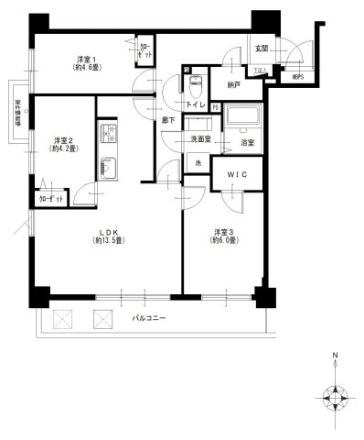
【南向き角部屋】陽当たり、通風良好
【収納】憧れのウォークインクローゼット、納戸、シューズボックス、トランクルーム
【独立型システムキッチン】導線確保でき、料理にも集中できる
こだわり条件
Data
- 所在地
- 東京都足立区東和3-5-10
- 交通
- 東京メトロ千代田線「北綾瀬」駅まで徒歩10分
- 価格
- 3,690万円
- 築年数
- 1987年(昭和62年) 9月
- 間取り
- 3LDK+WIC+N
- 専有面積
- 66.06㎡(坪数19.98坪)
こだわり条件
Appeal pointアピールポイント
最寄り駅が始発駅なので必ず座れるのは嬉しい
都心までも約30分と好立地!
駅前は再開発され商業施設ができて、買い物や外食に便利
徒歩圏内に一年中入れるプールがあり、リフレッシュしたり、
ダイエットにも◎
このお部屋は収納が充実しているので
洋服や荷物の多い方、ファミリーには嬉しい物件
リビングには昼間は太陽が差し込み、
ぽかぽか過ごせる
アルコーブがあるからセキュリティ面も安心
【南向き角部屋】陽当たり、通風良好
【収納】憧れのウォークインクローゼット、納戸、シューズボックス、トランクルーム
【独立型システムキッチン】導線確保でき、料理にも集中できる
Spec物件情報
- 所在地
- 東京都足立区東和3-5-10
- 交通
- 東京メトロ千代田線「北綾瀬」駅まで徒歩10分
- 築年数
- 1987年(昭和62年) 9月
- 価格
- 3,690万円
- 部屋階数
- 2階
- 間取り
- 3LDK+WIC+N
- 専有面積
- 66.06㎡(坪数19.98坪)
- バルコニー面積
- 8.76㎡(坪数2.65坪)
詳細情報を見る
- 管理費
- 16,300円/月
- 修繕積立金
- 22,130円/月
- その他の費用
- 令和7年度固都税額:年額87,603円
- 総戸数
- 25戸
- 建物規模・構造
- 鉄筋コンクリート造6階建
- 方位
- 南
- 土地権利
- 所有権
- 施工
- 株式会社奥村組
- 分譲会社
- 東急不動産株式会社
- 駐車場・駐輪場
- 駐車場:敷地内有(月額15,000円)
- バイク置き場
- 敷地内有(月額500円)
- ペット
- 小鳥・観賞用魚のみ可(犬・猫、不可)
- 管理会社
- 株式会社東急コミュニティー
- 管理形態
- 全部委託(巡回)
- 現況
- 空室
- 引き渡し
- 相談
- 取引形態
- 売主
- 備考
-
※駐輪場:敷地内有(月額100円)
※トランクルーム:敷地内有(月額1,000~2,300円)
※アルコーブ面積:1.81㎡
※室外機置場面積:1.14㎡
※MB・PS面積:0.68㎡
登録日:2025年10月24日
更新日:2025年10月27日






















